• Betrouwbaar mechanisch automatisch terugspoelventiel, in zowel privé als openbare zwembaden inzetbaar, gefabriceerd door de firma Besgo uit     Zwitserland.
• Zeer gering drukverlies, om te schakelen zonder installatie stop te zetten.
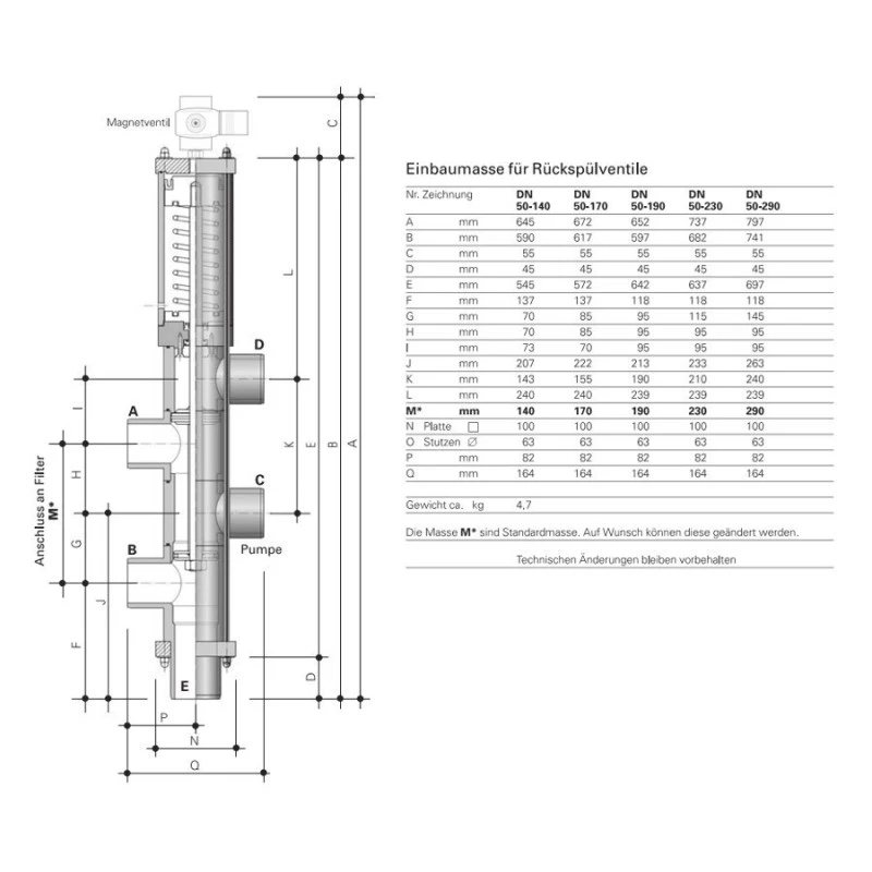
• In ruststand staat deze in de stand filteren, optimale veiligheid. Een groot voordeel omdat het zwembad bij bv. stroomuitval niet leeggeheveld kan worden. Als het magneetventiel bekrachtigd is wordt er teruggespoeld.
• Bediend d.m.v. water- of luchtdruk via een 230 V magneetventiel.Â
• Binnenwerk is uitgevoerd in RVS316, dichtingen zijn ozonbestendig en uitgevoerd in Viton / PTFE, probleemloos inzetbaar bij zwembaden met zout-elektrolyse.
• Te besturen via Aqua Easy Pool Control 2 / Aqua Easy Control Plus, extra schakelkast overbodig.
• Het geniet de voorkeur de ventielen (los)koppelbaar te monteren, middels deelbare koppelingen.
• Gecertificeerd door Belgaqua (Belgische federatie vd Watersector).
• 2 jaar fabrieksgarantie.
De Besgo ventielen kunnen werken op waterleidingdruk, minimaal vereiste druk in het waterleidingnet van 3 bar benodigd. Indien de beschikbare water- of luchtdruk lager is dient er een compressorset of drukverhogingspomp opgenomen te worden.Het geniet de voorkeur om de ventielen middels lucht aan te sturen, om de volgende redenen ;
• Na bediening van de klep dient bij waterdruk altijd een aansluiting gemaakt te worden naar het riool, lucht verdwijnt in de ruimte. Ook bij een onverhoopte lekkage een belangrijk verschil.
• Luchtdruk is instelbaar en altijd aanwezig, waterdruk kan variëren, bv. in de zomer bij veelvuldig gebruik.
• Sneller en eenvoudig aan te sluiten.
















Beoordelingen
Er zijn nog geen beoordelingen.